- Woonoppervlakte
- Circa 152 m²
- Perceeloppervlakte
- Circa 295 m²
- Bouwjaar
- Gebouwd in 2003
- Aantal kamers
- 5 kamers (4 slaapkamers)
STIJLVOLLE TWEE-ONDER-EEN-KAPWONING AAN HET WATER MET GARAGE EN MEDITERRANE TUIN
Welkom bij deze ruime 2-ONDER-1-KAPWONING MET GARAGE aan het Alida Buitendijk Erf 39 in Heerhugowaard. Een prachtig gelegen gezinswoning, gebouwd in 2003, met energielabel A, 12 zonnepanelen en een royale vrijstaande garage. Met maar liefst 151 m² woonoppervlak, vier slaapkamers (mogelijkheid tot vijf) en een diepe achtertuin aan het WATER is dit een woning waar comfort, ruimte en sfeer samenkomen.
De zonnige tuin met meerdere terrassen en een brede vlonder aan het water zorgen voor een blijvend vakantiegevoel. Parkeren kan gemakkelijk op eigen terrein voor twee auto’s.
LOCATIE:
De woning ligt in een rustige en kindvriendelijke woonwijk Huygenhoek met scholen en sportvoorzieningen dichtbij. Een ruim opgezette woonwijk met volop water en speelmogelijkheden voor kinderen. Met het Park van Luna letterlijk om de hoek, stap je zo de natuur in: wandelen, fietsen of varen – hier kan het allemaal. Verder ben je binnen enkele minuten fietsen bij winkelcentrum Middenwaard, scholen, sportfaciliteiten en het NS-station.
Ook de verbindingen met Alkmaar, Hoorn en Amsterdam zijn uitstekend, zowel met de auto als met het openbaar vervoer.
Check de EXCLUSIEVE EIGEN WONINGWEBSITE (alidabuitendijkerf39.nl) voor meer informatie over de woning en de omgeving via de site van EV Wonen Makelaardij.
BEZICHTIGEN? Plan direct een afspraak via Funda of de site van EV Wonen Makelaardij. We laten je deze prachtige woning graag van binnen en buiten ervaren.
INDELING:
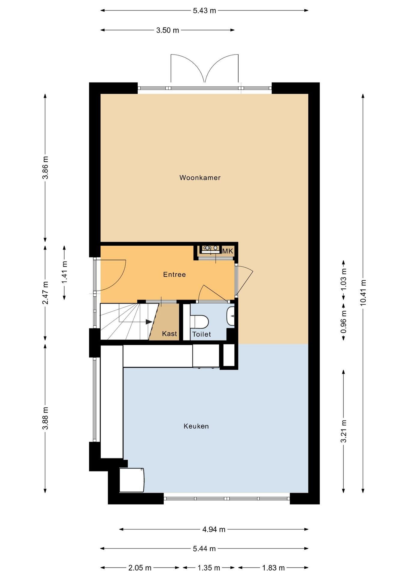
BEGANE GROND:
Aan de achterzijde bevindt zich de sfeervolle woonkamer met tegelvloer, elektrische vloerverwarming (keuken en woonkamer), plafondhoge ramen en dubbele openslaande tuindeuren naar de zonnige tuin. De ruimte is heerlijk licht en biedt een prachtig uitzicht over het groen.
De riante woonkeuken van het Duitse merk Rational is voorzien van een Corian werkblad en uitgebreide apparatuur: een 5-pits SMEG gaskookplaat met wok- en grillbrander, Siemens vaatwasser, heteluchtoven (Siemens), Bosch afzuigkap en zelfs een warmhoud-/rijslade. Hier kook je met plezier voor familie en vrienden.
1e VERDIEPING:
Op de eerste verdieping bevinden zich drie slaapkamers, allen voorzien van een visgraat laminaatvloer in licht eiken en glasvezelbehang. De hoofdslaapkamer beschikt over een royale garderobekast en een stille Mitsubishi airco.
De luxe badkamer (2023) is uitgevoerd in marmerlook tegelwerk en voorzien van een ruime inloopdouche met drie nissen, een dubbele wastafel met meubel en een inbouwtoilet.
2e VERDIEPING:
Op de zolderverdieping is een vierde slaapkamer aanwezig met een prachtig halfronde dakkapel en een dakraam met hor en rolluik. Er is bergruimte onder de schuine kant, een wasruimte met aansluitingen voor wasmachine en droger, en een ruime bergvliering. Hier kan eenvoudig een vijfde slaapkamer worden gerealiseerd. Deze verdieping is voorzien van een laminaatvloer. Ook is er een kleine vliering en ruimte onder de schuine kant voor extra bergruimte.
BUITENRUIMTE:
De achtertuin, ontworpen in mediterrane stijl door Stephan Hendriks, is een absolute eyecatcher. Met twee terrassen, fraaie beplanting en een breed vlonderterras (7 meter) aan het water, geniet je hier de hele dag van zon, rust en privacy. Het vlonderterras biedt ruimte voor een gezellig zitje en de mogelijkheid om een bootje aan te leggen. Ook de voortuin is verzorgd aangelegd en net als de achtertuin voorzien van een zonnescherm.
GARAGE:
De vrijstaande stenen garage is ruim van opzet en voorzien van elektriciteit, watervoorziening, een zolder en een kanteldeur. Daarnaast kunt u met gemak twee auto’s parkeren op eigen terrein.
DUURZAAMHEID & TECHNIEK:
De woning is uitstekend geïsoleerd, volledig voorzien van dubbele beglazing en beschikt over 12 zonnepanelen (2023). Verder zijn aanwezig: een Intergas cv-ketel (2012), warmte-terugwininstallatie (2023), hete-luchtverwarming (2003) en een uitgebreide meterkast met 10 groepen.
Bijzonderheden:
- Royale twee-onder-een-kapwoning met vrijstaande garage
- Mediterrane achtertuin aan het water met een vlonder
- Woonkamer met veel lichtinval en openslaande deuren
- Grote woonkeuken met hoogwaardige inbouwapparatuur
- Vier slaapkamers, mogelijkheid tot vijf
- Luxe badkamer (2023) in marmerlook
- Airconditioning in hoofdslaapkamer
- Energiezuinig (energielabel A, 12 zonnepanelen)
- Parkeren op eigen terrein voor twee auto’s
Deze woning combineert ruimte, luxe en een prachtige ligging aan het water. Ben je op zoek naar een instapklaar gezinshuis op een unieke plek in Heerhugowaard? Dan is een bezichtiging zeker de moeite waard. Neem contact met ons op voor een afspraak – wij leiden je graag rond! Lees de volledige omschrijving
Overdracht
- Vraagprijs
- € 675.000 k.k.
- Status
- Beschikbaar
- Aanvaarding
- In overleg
Bouw
- Object type
- Eengezinswoning, 2-onder-1-kapwoning
- Soort bouw
- Bestaande bouw
- Bouwjaar
- 2003
- Soort dak
- Zadeldak bedekt met pannen
Oppervlakte en inhoud
- Woonoppervlakte
- 152 m²
- Perceeloppervlakte
- 295 m²
- Inhoud
- 533 m³
- Externe bergruimte
- 22 m²
Indeling
- Aantal kamers
- 5 kamers (4 slaapkamers)
- Aantal badkamers
- 1 badkamer en 1 apart toilet
- Badkamervoorzieningen
- Dubbele wastafel, inloopdouche, en toilet
- Aantal woonlagen
- 3 woonlagen
- Voorzieningen
- Buitenzonwering, dakraam, mechanische ventilatie, rolluiken, en zonnepanelen
Energie
- Energielabel
- A
- Energielabel registratie
- 31-07-2020
- Isolatie
- Dakisolatie, dubbel glas, muurisolatie, vloerisolatie en volledig geïsoleerd
- Verwarming
- Heteluchtverwarming, gedeeltelijke vloerverwarming en warmte terugwininstallatie
- Warm water
- Cv-ketel
Buitenruimte
- Ligging
- Aan rustige weg, aan vaarwater en in woonwijk
- Tuin
- Achtertuin en voortuin
- Afmetingen achtertuin
- 120 m² (10,00 meter diep en 12,00 meter breed)
- ligging tuin
- Gelegen op het noordoosten
Garage
- Soort garage
- Vrijstaande stenen garage
- Capaciteit
- 1 auto
- Voorzieningen
- Vliering, elektra en stromend stromend water
Parkeergelegenheid
- Soort parkeergelegenheid
- Op eigen terrein
Actueel energieverbruik
Energielabel deze woning
Energielabel A
Publicatie energielabel: 31-07-2020
Stroomverbruik per jaar
Alida Buitendijk erf 39, Heerhugowaard
Gasverbruik per jaar
Alida Buitendijk erf 39, Heerhugowaard
Indicatie hypotheeklasten
Eigen inleg:
Spaargeld / overwaarde
Rente:
Laagste 10-jaars rente
Laagste 10-jaars rente
2,78% - Centraal Beheer Groen... - NHG
3,04% - Centraal Beheer Groen... - 80%
Laagste 20-jaars rente
3,29% - Centraal Beheer Groen... - NHG
3,52% - Centraal Beheer Groen... - 80%
Laagste 30-jaars rente
3,41% - Centraal Beheer Groen... - NHG
3,7% - Argenta Groen Hypotheek... - 80%
Hypotheek:
Bruto maandlasten: € 0 p/m
Netto maandlasten: € 0 p/m
Hoe berekenen we dit?
Het rentepercentage is gebaseerd op de laagste 10 jaars vaste rente voor één hypotheekdeel. De vermelde rente (3.04% zonder NHG) is gecontroleerd op 08-03-2026. Deze berekening is gebaseerd op een annuïteitenhypotheek die volledig wordt afgelost, waarbij de maandlasten gedurende de gehele looptijd gelijk blijven. De werkelijke rente en netto maandlasten kunnen variëren, afhankelijk van uw persoonlijke situatie en de hypotheekverstrekker. Raadpleeg een financieel adviseur voor een nauwkeurige berekening en advies. Aan deze berekening kunnen geen rechten worden ontleend; het dient enkel als indicatie.
Documentatie
Kadastrale kaart
Leefomgeving
Brochure woning
Plattegronden PDF
BAG uittreksel
Lijst van zaken
Vragenlijst woning
Meetrapport
WOZ - gemeentelijke belastingen
WOZ waarderapport
Bezoek onze website
Bezichtiging
Bod uitbrengen
Waardebepaling
Zoekopdracht
Alles downloaden
Zonnegrenzen bekijken
Inwoners in Heerhugowaard
Cijfers voor postcodegebied 1705
- Totaal aantal inwoners
- 59045 inwoners
- Mannen
- 51%
- Vrouwen
- 49%
Inwoners in Heerhugowaard
Cijfers voor postcodegebied 1705
- tot 15 jaar
- 17%
- 15 tot 25 jaar
- 13%
- 25 tot 35 jaar
- 25%
- 45 tot 65 jaar
- 27%
- 65 en ouder
- 18%
Huishoudens in Heerhugowaard
Cijfers voor postcodegebied 1705
- Eenpersoons zonder kinderen
- 27%
- Meerpersoons zonder kinderen
- 23%
- Huishoudens zonder kinderen
- 50%
Huishoudens in Heerhugowaard
Cijfers voor postcodegebied 1705
- Huishoudens met één kind
- 9%
- Huishoudens met meerdere kinderen
- 41%
- Huishoudens met kinderen
- 50%
Woningen in Heerhugowaard
Cijfers voor postcodegebied 1705
- Woningen voor 1945
- 1%
- Woningen tussen 1945 en 1965
- 1%
- Woningen tussen 1965 en 1975
- 1%
- Woningen tussen 1975 en 1985
- 1%
- Woningen tussen 1985 en 1995
- 1%
Woningen in Heerhugowaard
Cijfers voor postcodegebied 1705
- Woningen tussen 1995 en 2005
- 69%
- Woningen tussen 2005 en 2015
- 28%
- Woningen na 2015
- 2%
- Huurwoningen
- 30%
- Koopwoningen
- 70%
Overige in Heerhugowaard
Cijfers voor postcodegebied 1705
- Gemiddelde WOZ waarde
- € 264.000,-
- Personen onder de 65 met uitkering
- 7%
Overige in Heerhugowaard
Cijfers voor postcodegebied 1705
- Adressen per km²
- 1752
- Stedelijkheid (schaal 1 op 5)
- 80%
Korte feiten over Heerhugowaard
Heerhugowaard is een plaats in de gemeente Dijk en Waard, in de regio West-Friesland in de Nederlandse provincie Noord-Holland. Heerhugowaard hoort historisch gezien niet bij Kennemerland maar valt wel onder de gemeentelijke samenwerkingsregio Kennemerland via Noord-Kennemerland.
Wie is EV Wonen Makelaardij?
Het verlaten van je oude woning of het ontdekken van je nieuwe droomhuis is een ongelooflijk opwindend proces voor de meeste van onze klanten. Er zijn zoveel besluiten te nemen en talloze factoren die invloed hebben op het behalen van het best mogelijke resultaat voor jou. Bovendien is de vraag naar woningen sterk gestegen en hebben de prijzen recordhoogtes bereikt.
In deze dynamische en vaak onvoorspelbare markt zijn wij de toonaangevende verkoopmakelaar in de regio, goed geïnformeerd over de lokale huizenmarkt en de verkoopmogelijkheden van jouw woning.
We hebben voor veel klanten uitstekende verkoop- of aankoopresultaten behaald. Wij volgen geen vaste methoden, omdat we geloven dat elke woning en verkoper uniek is. Bij ons kun je rekenen op een persoonlijke benadering. Ons succesgeheim is dat we alledaagse dingen buitengewoon goed uitvoeren.
Een huis met succes verkopen is geen eenvoudige taak. EV Wonen Makelaardij biedt:
– een solide verkoopstrategie;
– een eersteklas presentatie met altijd een toppositie op Funda;
– een gedreven en gecertificeerde Register Makelaar/Taxateur;
– proactief gebruik van sociale media;
– en een flinke portie lokale marktkennis.
Onze aanpak heeft de afgelopen jaren geleid tot een zeer hoge Funda klantbeoordeling van 9,5! Dit betekent dat klanten met een goed verkoopproces uitstekende verkoopresultaten hebben behaald.
We besteden veel aandacht aan jouw persoonlijke situatie en de specifieke kenmerken van jouw woning. Dit, in combinatie met een goede communicatie, garandeert een succesvol verkoop- of aankooptraject. Benieuwd wat we voor jou kunnen doen? We komen graag vrijblijvend langs voor advies op maat.
Naast Heerhugowaard zijn we ook actief als makelaar in Alkmaar, Oterleek, Langedijk, Hensbroek, Obdam en omgeving.
Wij kunnen je op een unieke en persoonlijke manier volledig ontzorgen als verkoopmakelaar of aankoopmakelaar bij de verkoop of aankoop van jouw woning.
Nieuwste reviews
-
David Sanderse
Zeer kundige en goed voorbereide makelaar. We hebben duidelijke afspraken gemaakt rondom de verkoop en die zijn nagekomen. De communicatie i...
-
Gabriëlstraat 17
EV Wonen heeft direct in 1e gesprek direct een grondige marktkennis laten zien en een gedegen plan van aanpak en offerte overlegd. EV Wonen...
-
Annemieke Weijers
Goede ervaring gehad met de makelaar. Nette eerlijke open onderhandelingen. Ook fijn dat alles op tijd en correct werd afgehandeld.